REQUEST A TOUR If you would like to see this home without being there in person, select the "Virtual Tour" option and your advisor will contact you to discuss available opportunities.
In-PersonVirtual Tour

$ 2,000
New
11 Brunel CT #4216 Toronto (waterfront Communities), ON M5V3Y3
1 Bed
1 Bath
UPDATED:
Key Details
Property Type Single Family Home, Condo
Sub Type Condo
Listing Status Active
Purchase Type For Rent
Subdivision Waterfront Communities C1
MLS® Listing ID C12609090
Bedrooms 1
Property Sub-Type Condo
Source Toronto Regional Real Estate Board
Property Description
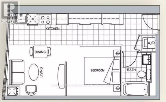
Welcome to West One! Fabulous Amenities and very well maintained building. Enjoy the views of Lake Ontario and unobstructed views of the city. One bedroom, one locker with ample closet space and cozy interior. Have access to swimming pool, gym, BBQ, lounge, deck, party amenities room and visitor parking. 24 hr concierge/security. Walking distance to TTC, Rogers, Financial Core, Grocery, Community Centre and Urban conveniences. (id:24570)
Location
Province ON
Rooms
Kitchen 0.0
Interior
Heating Forced air
Cooling Central air conditioning
Exterior
Parking Features Yes
Community Features Pets not Allowed
View Y/N Yes
View View of water
Private Pool No
Others
Ownership Condominium/Strata
Acceptable Financing Monthly
Listing Terms Monthly
GET MORE INFORMATION






